Espace Client Espace Propriétaire          

Résidence " LA VALLOISE"

PROGRAMME NEUF - 16 appartements - N'attendez plus pour concrétiser votre projet !

Réf. RV688

Accueil > Les ventes > Résidence " LA VALLOISE"

 


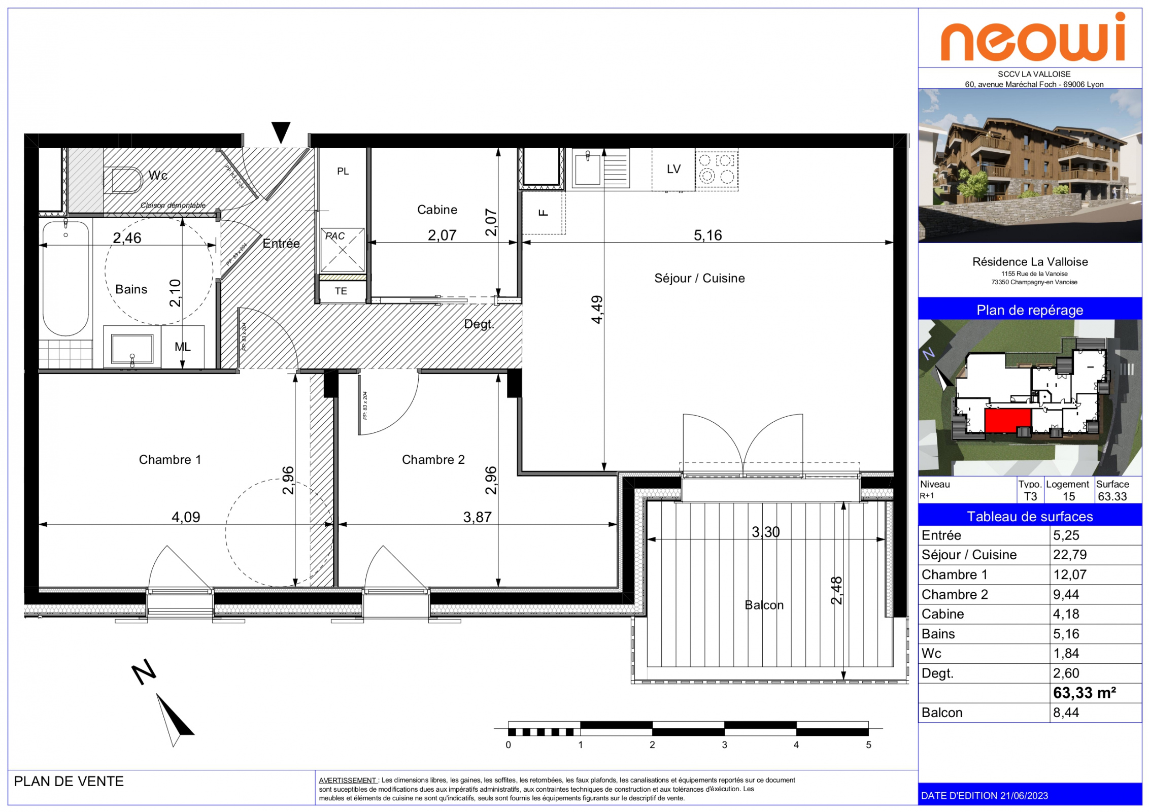
63.33 m2

2

1
447 500 €
Prix honoraires inclus de 447 500,00 €, prix hors honoraires 420 650,00 €, honoraires de 6.00% montant TTC : 26 850,00 €, à la charge du vendeur

 

Champagny en Vanoise

 

Description

Située sur les hauteurs de Champagny en Vanoise, la résidence "La Valloise" bénéficie d'un emplacement priviligié, à proximité immédiate de toutes les commodités. A seulement 7 minutes à pied de la télécabine menant au domaine skiable de Paradiski, cette résidence intimiste est idéale pour des vacances en famille ou en couple.
Cet appartement comprend :
1 entrée avec placard,
Séjour / cuisine ouvrant sur un balcon sud,
2 chambres,
1 cabine,
1 salle de bains et WC séparés.
1 place de parking - 1 casier à skis

 

Informations diverses

Superficie : 63.33 m²
Surface habitable : 63.33
Surface des dépendances : 0
Etage : Premier étage
Ascenseur : oui
Nombre de pièces : 3
Nombre de chambres : 2
Exposition : Sud
Cave : non
Casier à skis : oui
Garage ou parking couvert : oui
Vendu meublé : non
Type de chauffage : Chauffage pompe à chaleur
Année de construction : 2025

Pièces et surface

Entrée : 5,25 m2
Séjour / cuisine : 22,79 m2
Chambre 1 : 12,07 m2
Chambre 2 : 9,44 m2
Cabine : 4,18 m2
Salle de bains : 5,16 m2
WC : 1,84 m2
Dégagement : 2,60 m2

Aménagements extérieurs

Balcon : 8,44 m2

 

 

Consommation énergétique

 

 

Copropriété

Copropriété: oui
Nombre d'appartements : 16
Procédure judiciaire en cours : non

 

 

Retour   Les ventes à Champagny en Vanoise

 

 

Agence immobilière pralognan logo
 
384 Avenue de Chasseforêt
73710 Pralognan la Vanoise
contact@pralognan-agence.com
+33(0) 479 01 40 94

Suivez-nous :

Lien Facebook compte agence.com à Pralognan   Lien INstagram compte agence.com à Pralognan

Menu

 

 

© Agence.com 2024 - Tout droits réservés